Großzügiges Einfamilienhaus in Merzen – Ihr neues Zuhause wartet!
49586 Merzen, Einfamilienhaus zum Kauf
Kontaktdaten
-
NameLina Vennemeyer
-
FirmaBaugenossenschaft Landkreis Osnabrück eG
- zum Kontaktformular
Objektdaten
-
Objekt-ID161220
-
ObjekttypenEinfamilienhaus, Haus
-
Adresse49586 Merzen
-
Wohnfläche ca.204,26 m²
-
Grundstück ca.829 m²
-
Zimmer6
-
Schlafzimmer5
-
Badezimmer1
-
Wesentlicher EnergieträgerGas
-
Baujahr1997
-
Zustandgepflegt
-
AusstattungStandard
-
Stellplätze gesamt2
-
Kaufpreis395.000 EUR
Ausstattung / Merkmale
- ✓ Garage
- ✓ Gäste-WC
Energieausweis
-
Energieausweiswird bei Besichtigung vorgelegt
Objektbeschreibung
Beschreibung
Dieses großzügige Einfamilienhaus in Merzen befindet sich auf einem Erbpachtgrundstück mit einer Größe von 829 m² und wurde im Jahr 1997 gebaut. Es bietet eine großzügige Wohnfläche von 204,26 m², auf der eine große Familie ihrem Platzbedarf gerecht werden kann. Auf Wunsch lässt sich das Haus auf einfache Weise in ein Zweifamilienhaus umbauen. Die entsprechenden Anschlüsse sind dafür bereits vorhanden.
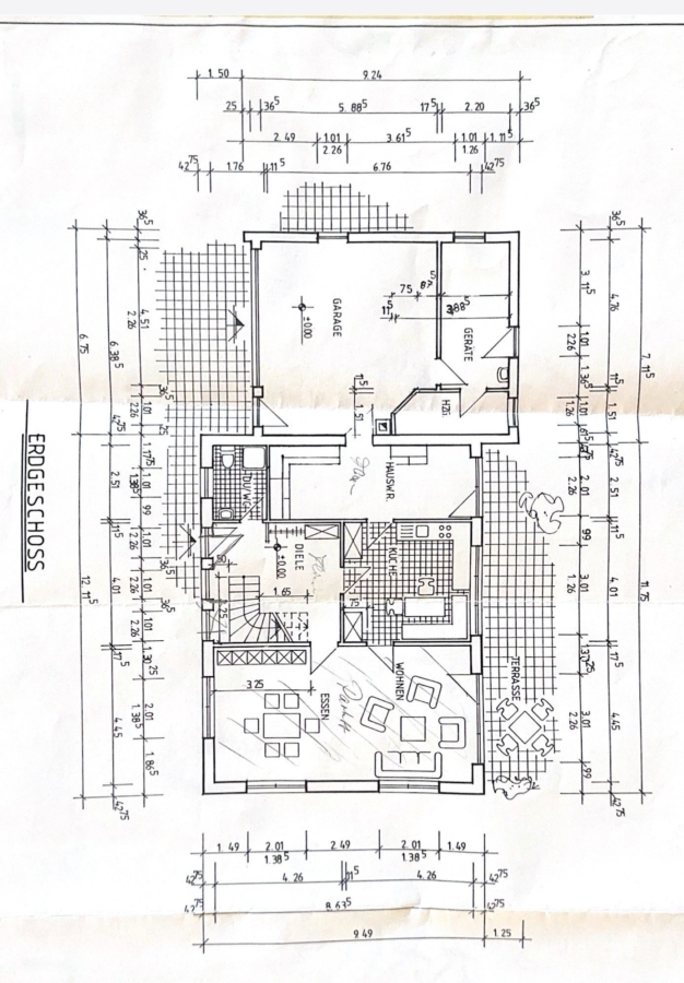
Im Erdgeschoss empfängt Sie der lichtdurchflutete Eingangsbereich, von dem Sie ins geräumige Wohn-/Esszimmer, in die Küche und in das komfortable Gäste-WC gelangen. Neben der Küche befindet sich der praktische Hauswirtschaftsraum mit Wäscheraum und reichlich Staufläche.
Von hier aus können Sie den Garagenanbau, sowie den Wintergarten und Garten erreichen.
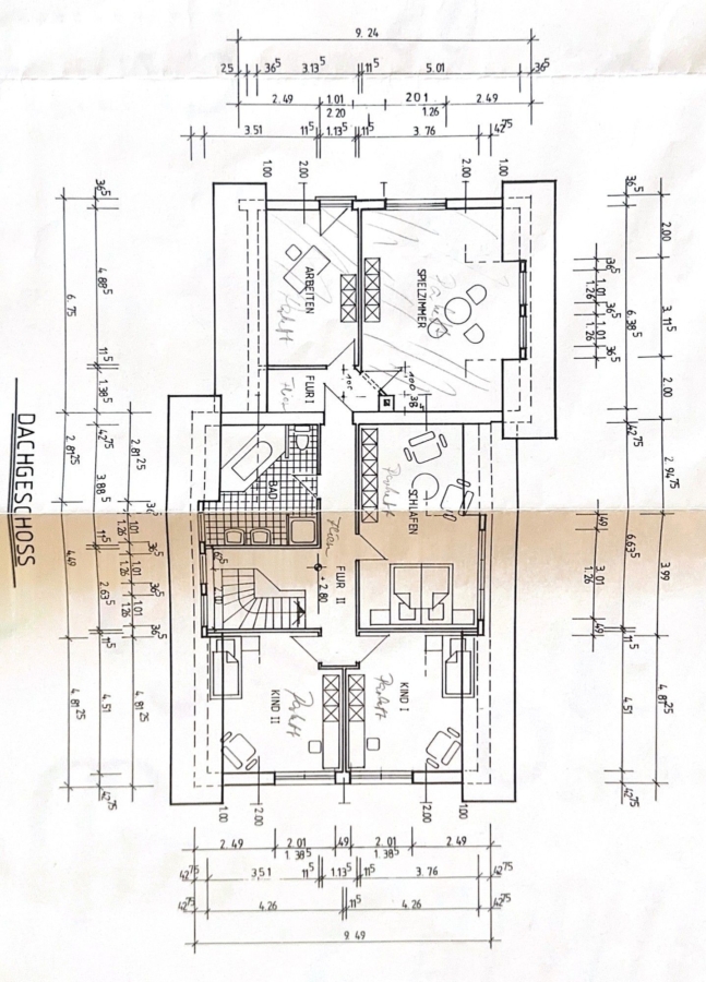
Ins Obergeschoss gelangen Sie über die Treppe im Eingangsbereich. Hier erwartet Sie das große Hauptbadezimmer mit WC, Dusche und Badewanne sowie 5 Zimmer, die Sie individuell nach Ihren Wünschen einrichten können. Der vollisolierte Dachboden über dem Obergeschoss bietet weiteren Stauraum.
Den geräumigen, solide gemauerten Wintergarten erreichen Sie vom Wohnzimmer sowie Hauswirtschaftsraum. Rechts neben dem Wintergarten befindet sich eine weitere, zum Süden ausgerichtete Terrasse, die sie über das Wohnzimmer erreichen können.
Der Garten ist liebevoll und uneinsehbar angelegt, sodass Sie ihr Familienleben in vollem Umfang genießen können.
Im Garagenanbau befindet sich eine Doppelgarage mit elektrischem Garagentor. Im Anbau befindet sich der separate Heizungsraum; hier steht die gut erhaltene und regelmäßig gewartete Gasheizung aus dem Jahr 2001. Ein weiterer Geräteraum steht zur Verfügung. Hinter dem Haus befindet sich ein Gartenblockhaus. Neben dem Haus steht ein Carport für ein drittes Auto.
Das Haus ist aktuell zum Verkauf verfügbar und eignet sich hervorragend für Käufer, die ein langfristiges Zuhause suchen.
Zögern Sie nicht und kontaktieren Sie uns gerne um genauere Informationen zu erhalten oder einen persönlichen Besichtigungstermin zu vereinbaren.
Ausstattung
- Einfamilienhaus
- Baujahr 1997
- Erbpachtgrundstück: 829 m²
- Erbbauzins von jährlich 664,28 €
- Wohnfläche: 204,26
- 5 Schlafzimmer
- Wohn-/Esszimmer
- Küche mit Einbauküche
- Badezimmer mit WC, Dusche, Badewanne
- Gäste-WC
- Hauswirtschaftsraum/Wäscheraum
- Geräteraum + Heizungsraum
- geräumiger, gemauerter Wintergarten (Südausrichtung) mit Kunststofffenstern
- Terrasse (Südausrichtung)
- Garten (Südausrichtung) mit Gartenhaus
- Doppelgarage mit elektrischem Tor
- Carport links neben dem Haus
- Gasheizung (2001)
- Fußbodenheizung im Wohnbereich und Bad im Obergeschoss
- elektrische Jalousien im Wohnbereich
- Fernwärme bereits angeschlossen
- familienfreundliche Umgebung
- freundliche Nachbarschaft
- verkehrsberuhigter Bereich
Sonstiges
Als Gegenleistung für unsere Maklertätigkeit verpflichten Sie sich bei Abschluss eines von uns vermittelten Vertrages zur oben genannten Immobilie zu einer Zahlung einer Provision in Höhe von 2,98 % inkl. MwSt. der finalen Kaufvertragssumme an uns.
Bei ernsthaften Interesse stellen Sie Ihre Anfrage bitte schriftlich über das Kontaktformular unter Angabe Ihrer vollständigen Kontaktdaten (Name, Anschrift, Telefon, Email-Adresse).
Vielen Dank!
Lage
Das Haus befindet sich in einer ruhigen und familienfreundlichen Nachbarschaft in Merzen. Die verkehrsberuhigte Lage bietet sich ideal als Zuhause für Familien mit Kindern an. Hier können Sie die Ruhe des ländlichen Lebens genießen, haben zudem jedoch eine hervorragende Anbindung an die umliegenden Städte.
Einkaufsmöglichkeiten für den täglichen Bedarf sind in unter 5 Minuten erreicht und können ebenfalls problemlos mit dem Fahrrad erreicht werden. Ein Kindergarten sowie die Grundschule sind in unmittelbarer Nähe und leicht zu erreichen. Auch an Freizeitaktivitäten, Restaurants, eine Eisdiele und vieles mehr mangelt es in Merzen nicht.
Wenn Sie die Immobilien-Karte anzeigen, übertragen Sie Daten an Google Maps (Datenschutzerklärung).
49586 Merzen, Deutschland (auf Google Maps ansehen)








