Schnell sein lohnt sich! Frisch sanierte 3-Zimmer-Wohnung in Bramsche.
49565 Bramsche, Etagenwohnung zur Miete
Kontaktdaten
-
NameLina Vennemeyer
-
FirmaBaugenossenschaft Landkreis Osnabrück eG
- zum Kontaktformular
Objektdaten
-
Objekt-ID170094
-
ObjekttypenEtagenwohnung, Wohnung
-
AdresseMoselstraße 12
49565 Bramsche -
Etage1
-
Wohnfläche ca.83,70 m²
-
Zimmer3
-
Schlafzimmer2
-
Badezimmer1
-
HeizungsartZentralheizung
-
Wesentlicher EnergieträgerGas
-
Baujahr1969
-
Zustandvollsaniert
-
AusstattungStandard
-
Verfügbar ab01.01.2026
-
Kaution1.420,00 EUR
-
Kaltmiete710,00 EUR
-
Nebenkosten190,00 EUR
-
Heizkostenin der Warmmiete enthalten
-
Warmmiete900,00 EUR (Heizkosten enthalten)
Energieausweis
-
Energieausweiswird bei Besichtigung vorgelegt
Objektbeschreibung
Beschreibung
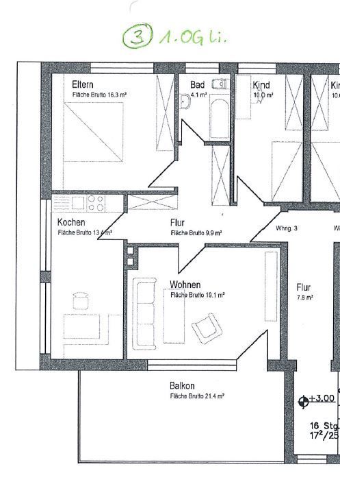
Diese frisch sanierte 3-Zimmer-Wohnung befindet sich im ersten Stock eines gepflegten Mehrparteienhauses in der Moselstraße 12 in Bramsche. Mit einer Wohnfläche von ca. 83,70 m² bietet die Wohnung ausreichend Platz für Singles, Paare oder kleine Familien. Die Räume sind hell und einladend, was eine angenehme Wohnatmosphäre schafft. Dank der Sanierung wird die Wohnung auf einen modernen Standard gebracht.
Insgesamt verteilt sich die Wohnung auf zwei Schlafzimmer, ein geräumiges Wohnzimmer mit Zugang zum Balkon, eine separate Küche mit Essbereich, sowie das Tageslichtbad und den Flur. Ein abschließbarer Kellerraum steht Ihnen ebenfalls zur Verfügung, der eine Menge Stauraum für Ihre persönlichen Gegenstände bietet.
Die Wohnung ist ab dem 01.01.2026 verfügbar. Wenn wir Ihr Interesse geweckt haben, melden sie sich gerne bei uns um einen persönlichen Besichtigungstermin zu erhalten.
Aufgrund der hohen Nachfrage können wir telefonische Anfragen nicht annehmen. Wir bitten Sie eine Kontaktanfrage online zu stellen. Sie erhalten von uns eine E- Mail mit weiteren Informationen und bitten um ein wenig Geduld.
Ausstattung
- frisch sanierte Obergeschosswohnung
- moderne Ausstattung
- weiße Türen und Zargen
- stylischer Bodenbelag
- frisch tapeziert und in weiß gestrichen
- 2 Schlafzimmer
- Wohnzimmer mit Zugang zum Balkon
- separate Küche
- Tageslichtbadezimmer
- Gas-Zentralheizung
- nette Hausgemeinschaft
- zentrale Lage
Sonstiges
Der Mieter hat eine einmalige und verzinslich angelegte Kaution in Höhe von 2 Kaltmieten vor Vertragsabschluss zu leisten. Die Offerte ist freibleibend. Irrtum, Zwischenvermietungen oder Preisänderungen bleiben vorbehalten.
Lage
Bramsche ist eine ruhige und familienfreundliche Stadt, die eine hervorragende Lebensqualität bietet. Die Wohnung liegt in einer zentralen Lage, die gute Anbindungen an die öffentlichen Verkehrsmittel und die umliegenden Städte ermöglicht. Einkaufsmöglichkeiten, Schulen und Freizeitangebote sind in unmittelbarer Nähe vorhanden, was die Lage besonders attraktiv macht.
Wenn Sie die Immobilien-Karte anzeigen, übertragen Sie Daten an Google Maps (Datenschutzerklärung).
Moselstraße 12, 49565 Bramsche, Deutschland (auf Google Maps ansehen)





